Departamento LEHU 2


Interiorismo Residencial

Arquitectura, Interiorismo y Construcción.

Club de Golf Bosques

Ciudad de México

2025

 

Superficie: 767 m2

Colaboración: Ana Gutiérrez Mayo (AGDG Interiores), LUA - Luz en Arquitectura, Hugo Sanchez - Paisaje, Piacere

Fotografía: Jaime Navarro

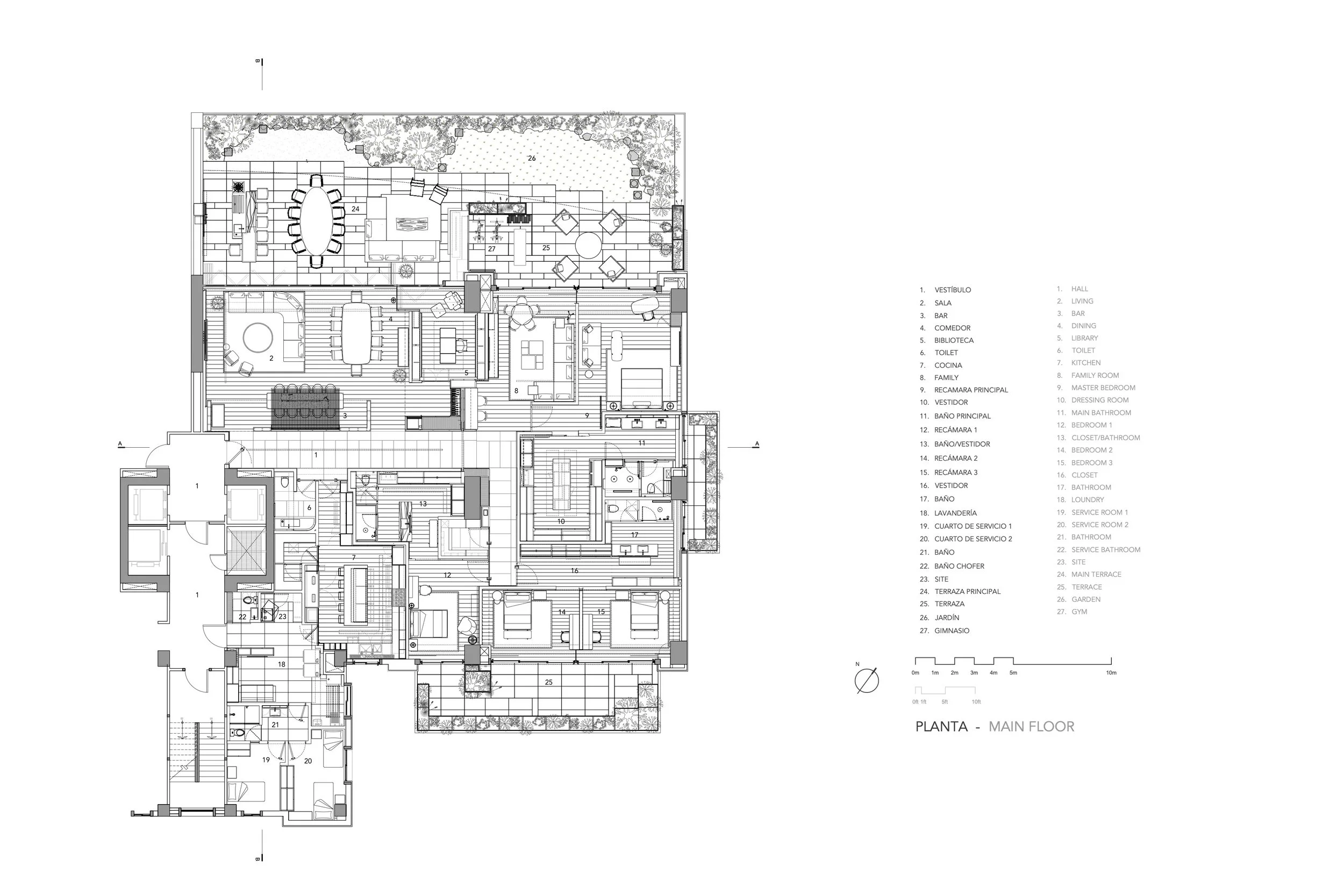
Este es un proyecto de arquitectura e interiorismo ubicado al poniente de la ciudad de México, en el Club de Golf Bosques.

El departamento, en uno de los pisos bajos del edificio, tiene una gran terraza con jardín en la fachada principal y otra terraza, más pequeña y privada, en la fachada trasera. Una de las fachadas es completamente ciega y colinda con otro departamento y circulaciones verticales del edificio, la cuarta fachada tiene un balcón que se destinó a vistas y ventilaciones de dos baños y vestidores.

El eje generador del departamento es un gran pasillo divisible que funciona como distribuidor para todas las áreas sociales, privadas y de servicios.

Todos los materiales usados tanto en pisos, muros y plafones son, en gran medida, naturales y de tonos neutros, cálidos y atemporales, dando como resultado un ambiente sereno, relajado y elegante.

Siguiente
Siguiente

Departamento CAPE