Colección Jumex


Museo

Arquitectura e Interiorismo

Via Morelos, Ecatepec Estado de México

2000

Superficie: 2068 m2

Fotografía: La Colección Jumex, Laura Cohen, Francisco Kochen, Gerardo García

En el año 1999, cuando la Colección Jumex tenía un acervo tan importante, tanto en cantidad como en calidad, nos invitaron a hacer un nuevo espacio dentro de la fábrica de jugos, Jumex, en Ecatepec, Estado de México.

El programa original del proyecto presentaba una cantidad importante de desafíos y condiciones que se fueron resolviendo de la mano del equipo y asesores especialistas en cada una de las áreas a proyectar, algunos de los más determinantes eran el área limitada destinada a este nuevo proyecto, el control constante y absoluto de temperatura y humedad para la preservación de las piezas, la necesidad de contar con iluminación natural controlada y que la sala principal fuera una sola sin elementos estructurales ni divisiones construidas que limitaran o condicionaran el espacio.

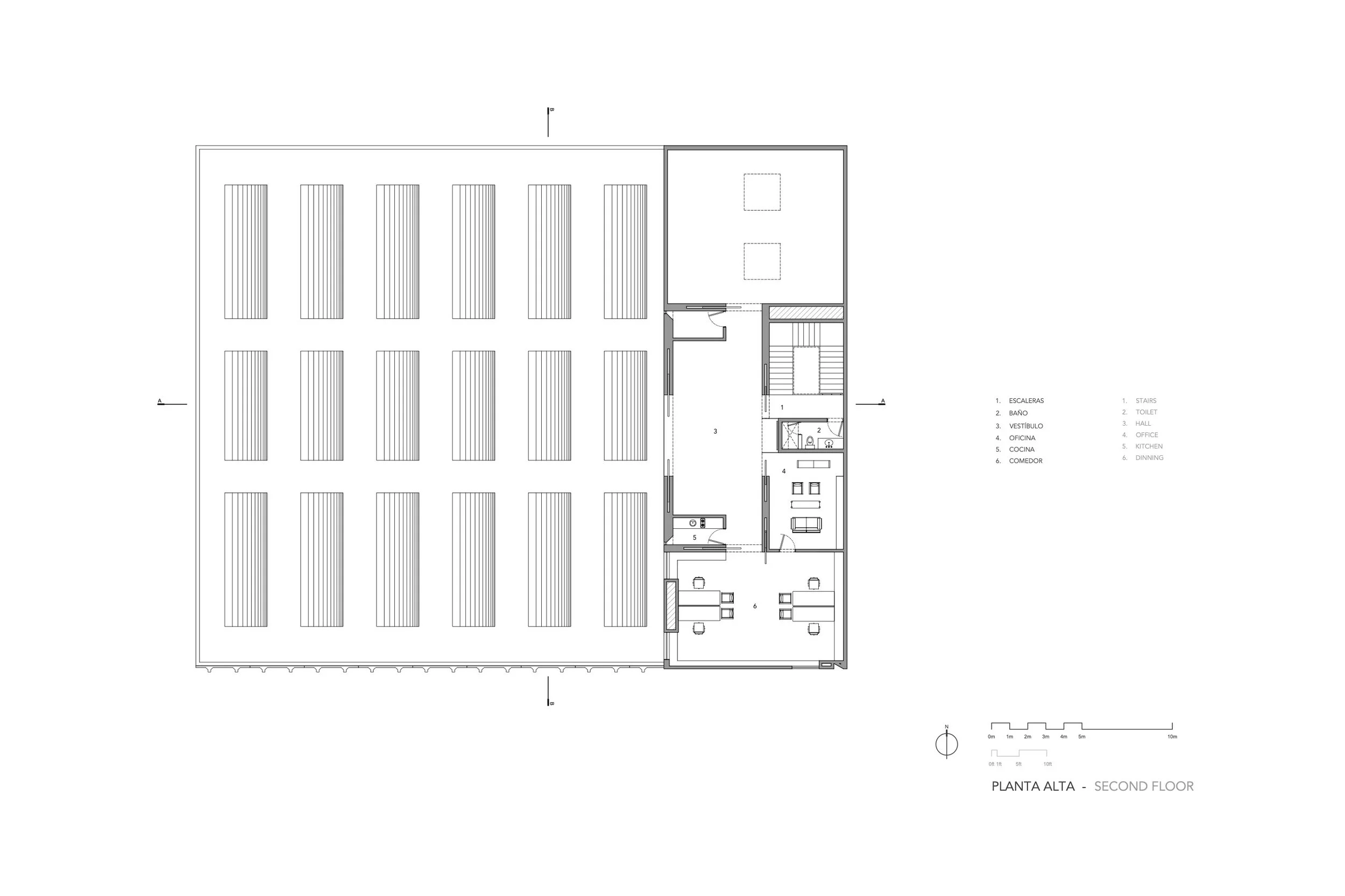
El edificio completo esta construido en su totalidad con concreto armado y colado en sitio y la fachada que contiene la sala principal, también de concreto, se construyó con elementos prefabricados. La entrada al espacio está perfectamente indicada con el logotipo de La Colección colado en el mismo concreto de la fachada y se entra a través de una puerta automática con control de presión de aire para evitar la entrada de agentes contaminantes al espacio. El primer contacto con la exhibición es a través del vestíbulo, con una barra de concreto y mármol de Carrara y un librero blanco con literatura de cada una de las exhibiciones. inmediatamente después hay un gran pasillo de comunicación con la sala principal, una pequeña sala oscura para exhibiciones especiales y las escaleras, también de concreto, que dan acceso a la segunda planta del edificio. En la segunda planta, de 300 m2, nos recibe la biblioteca, acervo de gran importancia también para La Colección, una sala de juntas y las oficinas administrativas.

Para lograr el aporte necesario de iluminación natural a la sala principal, se construyeron unos tragaluces especiales, orientados al norte, con cortadores de aluminio para evitar la entrada de rayos solares directos y en todas las estaciones del año.

Anterior
Anterior

Casa BELO

Siguiente
Siguiente

Casa LOFE